From Vision to Reality — Custom Casework

 

Customization in your home presents an opportunity to make a space that is designed for your specific needs in mind. Let's walk through the design process of how custom casework can help elevate your space.

Our design process begins with a concept as we aim to create a space suited for all of your needs — functionality, aesthetics, health, and well-being. This transformative process begins with your vision. Here's an example of how we begin.

 

While we do offer computer rendering as an optional service, our projects start with hand drawn images to convey the personalization of your space. Hand renderings reflect our goal of designing a living art piece with you and your unique story in mind.

 

Custom Elements

Custom elements individualize your space so that it feels uniquely yours. This is especially important when designing custom casework.

We begin with mood boards. Mood boards are designed with your goals and aesthetics in mind. They address functional needs while also showing a glimpse of what the final product will look and feel like.

 
 

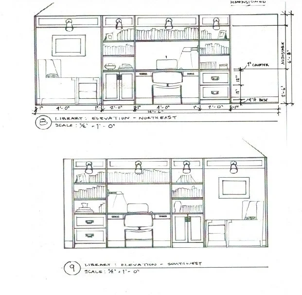
After establishing the mood board, we create detailed drawings to show you exactly how your custom casework will look in your space — we want to make sure that you can visualize the scale and proportion of your custom piece.

 

Design is a process, and we are here to guide you through every step. From initial hand drawings to detailed drawings installation, MOTIV Interiors will help your transform your space into the perfect expression of your design vision.

Check out our recent home library project below to see how it evolved from concept to final installation.

 

Do you have an idea for a space that you're not sure how to bring to life? We'd love to hear from you!

Let us know how we can help!
 
 
 
 
 
 
Previous
Previous

Hand Renderings — Creating a Living Piece of Art

Next
Next

Custom Upholstery — Combining Comfort and Charm